大众
青少
大众
青少
登录
注册
首页
民居展厅
专家讲堂
活动信息
个人中心
民居图片
首页
|
民居展厅
|
新街镇上主鲁老寨17号
|
民居图片
效果图
实景图
测绘图
水系图
原图下载
08 元阳县上主鲁老寨17号南立面
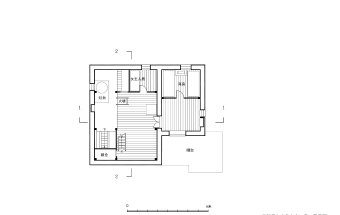
02 元阳县上主鲁老寨17号二层平面
03 元阳县上主鲁老寨17号三层平面
09 元阳县上主鲁老寨17号分层透视图
01 元阳县上主鲁老寨17号一层平面
07 元阳县上主鲁老寨17号北立面
04 元阳县上主鲁老寨17号1-1剖面
05 元阳县上主鲁老寨17号2-2剖面
06 元阳县上主鲁老寨17号西北立面
图片来源:清华大学乡土建筑研究所,数据采集:中国水利水电出版传媒集团有限公司。 引用须注明出处
请完成支付
您现在购买的是:
( 完整文本(详情) )
( 打包购买更加优惠,点击
打包购买
)
使用虚拟币抵扣
使用虚拟币抵扣
总金额
虚拟币
选择支付方式
待支付
¥
38.00
确认支付